Trilocale in vendita

Casalserugo, Via Umberto I
€ 220.000
Prezzo aggiornato
3 locali 3 locali
110 Mq 110 Mq
3 bagni 3 bagni

Trilocale in vendita

Casalserugo, Via Umberto I

Descrizione annuncio

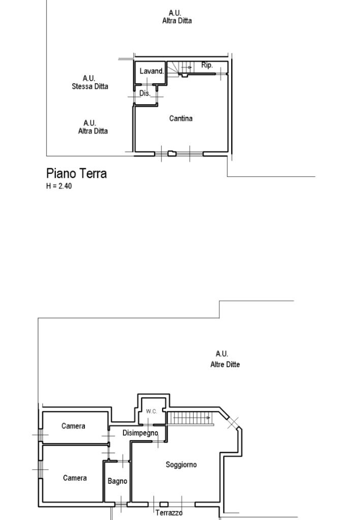
CASALSERUGO - In prestigioso residence circondato dal verde proponiamo in vendita appartamento al piano primo con taverna.

L'immobile che è stato oggetto di una ristrutturazione completa è composto da ingresso, soggiorno abitbaile con angolo cottura, camera matrimoniale, camera singola e doppi servizi, di cui uno finestrato con vasca ed uno cieco con doccia. A completare l'appartemento splendida taverna dotata di caminetto e terzo bagno con doccia.

Garage direttamente collegato con l'appartamento e posto auto privato.

Mostra tutto

Nelle vicinanze

Trasporto pubblico Trasporto pubblico
S. Giacomo / Bassa di Lion
S. Giacomo / Bassa di Lion
2,5 Km
San Giacomo / Chiesa
San Giacomo / Chiesa
2,6 Km
Ricariche auto elettriche Ricariche auto elettriche
Comune di Casalserugo
320 m
ZapGrid - Alì Supermercato
1,2 Km
Scuole Scuole
Scuole
230 m
Scuola Primaria Aldo Moro
2,6 Km
Supermercati Supermercati
Alì Casalserugo
1,2 Km
Negozi Negozi
Manifattura Corona
510 m
Bar Bar
Stefany & Vale
550 m
Ristoranti Ristoranti
Ristorante Ser Ugo
320 m
Giò Pizza
620 m
Trattoria dalla Nena
2,6 Km
Mostra tutto

Caratteristiche

Rif.:
61142344
Piano:
1 di 3 (Piano ammezzato)
Box:
1
Posti auto:
1
Terrazzi:
1
Camere da letto:
2
Mostra tutto
Prezzo Prezzo
€ 220.000
Rata mutuo Rata mutuo
€ 1.025 / mese
Spese annue Spese annue
€ 700
Proponi il tuo prezzoProponi il tuo prezzo

Classe Energetica

D
D
D
D
D
D
D
D
D
Anno di costruzione:
1996
Riscaldamento:
Autonomo
Tipo impianto:
A radiatori
Tipo alimentazione:
Metano

Prezzo ridotto di €1 (90%%)

Ti interessa visionare l'immobile?

Fissa un appuntamento  Fissa un appuntamento

Richiedi informazioni

Clicca su Leggi per aprire l'informativa
* Questi campi sono obbligatori

Calcola il tuo mutuo

Semplice e senza impegno
Anticipo

( % )
Mutuo

( % )

pochi semplici passi

inserisci i tuoi dati
Questionario completato
Grazie per aver richiesto un appuntamento senza impegno con un nostro Consulente del Credito e Assicurativo.

Hai inserito correttamente tutti i dati necessari e a breve riceverai una e-mail con un link da convalidare per inviare i tuoi dati.
Affiliato
Giove Sas
Via Terradura, 1 35020 Maserà Di Padova (PD)

Il nostro staff


  • Tatiana Rossetto
    Affiliata

  • Maila Carron
    Collaboratrice

  • King Jomarc Laqui Manalo
    Collaboratore

  • Jacopo Salmaso
    Affiliato
Via Terradura, 1 35020 Maserà Di Padova (PD)
Zona: Maserà Di Padova-Casalserugo - Bovolenta
Mostra su mappa
Orari: Dal lunedì al venerdì: 9:00 - 12:30 / 15:00 - 19:30; sabato: 9:00 - 12:30
Affiliato
Giove Sas
Via Terradura, 1 35020 Maserà Di Padova (PD)

2025 Tecnocasa Franchising S.p.A. - P. IVA 08365160152 - Via Monte Bianco 60/A 20089 Rozzano (MI). Ogni agenzia ha un proprio titolare ed è autonoma. Privacy policy | Policy utilizzo | Cookie policy