Trilocale in vendita

Casalserugo, Via Boccaccio
€ 120.000
3 locali 3 locali
70 Mq 70 Mq
2 bagni 2 bagni

Trilocale in vendita

Casalserugo, Via Boccaccio

Descrizione annuncio

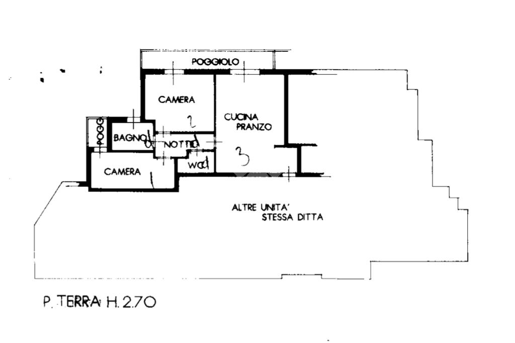
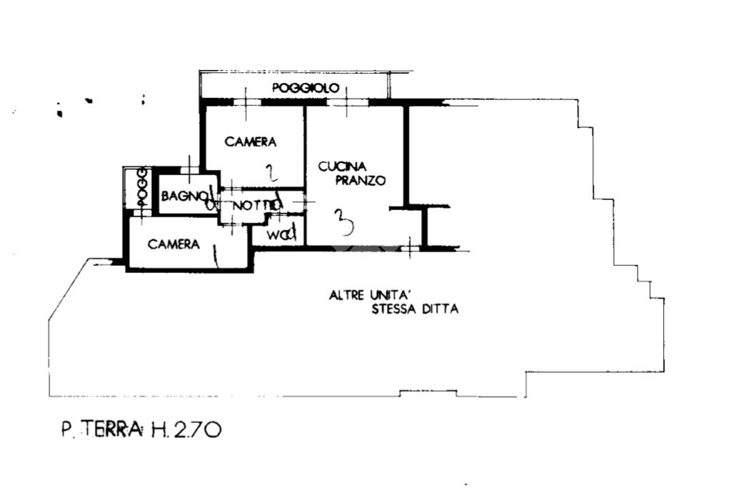
CASALSERUGO - APPARTAMENTO AL PIANO TERRA RIALZATO.

L'immobile del '95 è composto da soggiorno con angolo cottura, camera singola, camera matrimoniale, doppi servizi di cui uno finestrato con vasca e l'altro cieco con doccia inoltre sono presenti due poggioli nei quali abbiamo accesso dalla camera singola e dal soggiorno.

A concludere un garage.

L'immobile viene consegnato parzialmente arredato.

Mostra tutto

Nelle vicinanze

Trasporto pubblico Trasporto pubblico
S. Giacomo / Bassa di Lion
S. Giacomo / Bassa di Lion
1,8 Km
San Giacomo / Chiesa
San Giacomo / Chiesa
1,9 Km
Ricariche auto elettriche Ricariche auto elettriche
ZapGrid - Alì Supermercato
550 m
Comune di Casalserugo
1,0 Km
Scuole Scuole
Scuole
710 m
Scuola Primaria Aldo Moro
1,9 Km
Supermercati Supermercati
Alì Casalserugo
530 m
Negozi Negozi
Manifattura Corona
1,1 Km
Bar Bar
Stefany & Vale
1,3 Km
Ristoranti Ristoranti
Ristorante Ser Ugo
1,0 Km
Giò Pizza
1,3 Km
Trattoria dalla Nena
1,9 Km
Prosciutteria Villa Salom
2,7 Km
Mostra tutto

Caratteristiche

Rif.:
61117165
Piano:
Basso di 1
Totale piani:
1
Box:
1
Terrazzi:
2
Camere da letto:
2
Mostra tutto
Prezzo Prezzo
€ 120.000
Rata mutuo Rata mutuo
€ 555 / mese
Spese annue Spese annue
€ 600
Proponi il tuo prezzoProponi il tuo prezzo

Classe Energetica

E
E
E
E
E
E
E
E
E
Anno di costruzione:
1995
Riscaldamento:
Autonomo
Tipo impianto:
A radiatori
Tipo alimentazione:
Metano

Ti interessa visionare l'immobile?

Fissa un appuntamento  Fissa un appuntamento

Richiedi informazioni

* Questi campi sono obbligatori

Calcola il tuo mutuo

Semplice e senza impegno
Anticipo

( % )
Mutuo

( % )

pochi semplici passi

inserisci i tuoi dati
Questionario completato
Grazie per aver richiesto un appuntamento senza impegno con un nostro Consulente del Credito e Assicurativo.

Hai inserito correttamente tutti i dati necessari e a breve riceverai una e-mail con un link da convalidare per inviare i tuoi dati.
Affiliato
Giove Sas
Via Terradura, 1 35020 Maserà Di Padova (PD)

Il nostro staff


  • Tatiana Rossetto
    Affiliata

  • Maila Carron
    Collaboratrice

  • King Jomarc Laqui Manalo
    Collaboratore

  • Jacopo Salmaso
    Affiliato
Via Terradura, 1 35020 Maserà Di Padova (PD)
Zona: Maserà Di Padova-Casalserugo - Bovolenta
Mostra su mappa
Orari: Dal lunedì al venerdì: 9:00 - 12:30 / 15:00 - 19:30; sabato: 9:00 - 12:30
Affiliato
Giove Sas
Via Terradura, 1 35020 Maserà Di Padova (PD)

2025 Tecnocasa Franchising S.p.A. - P. IVA 08365160152 - Via Monte Bianco 60/A 20089 Rozzano (MI). Ogni agenzia ha un proprio titolare ed è autonoma. Privacy policy | Policy utilizzo | Cookie policy