Villa singola in vendita

Bovolenta, Via risorgimento
€ 250.000
4 locali 4 locali
248 Mq 248 Mq
2 bagni 2 bagni

Villa singola in vendita

Bovolenta, Via risorgimento

Descrizione annuncio

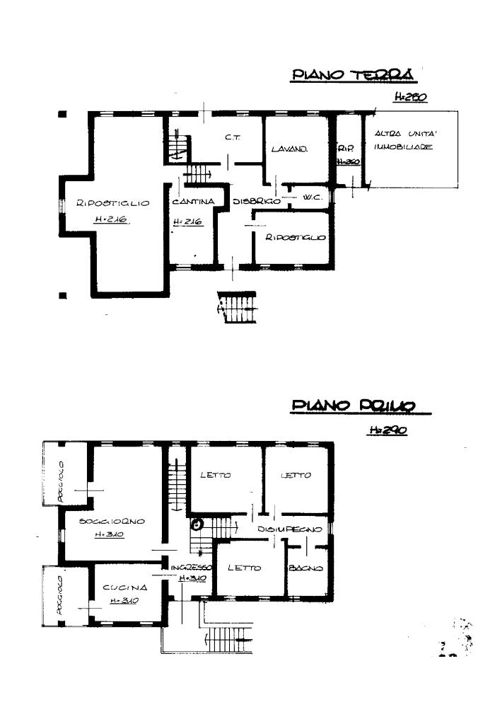
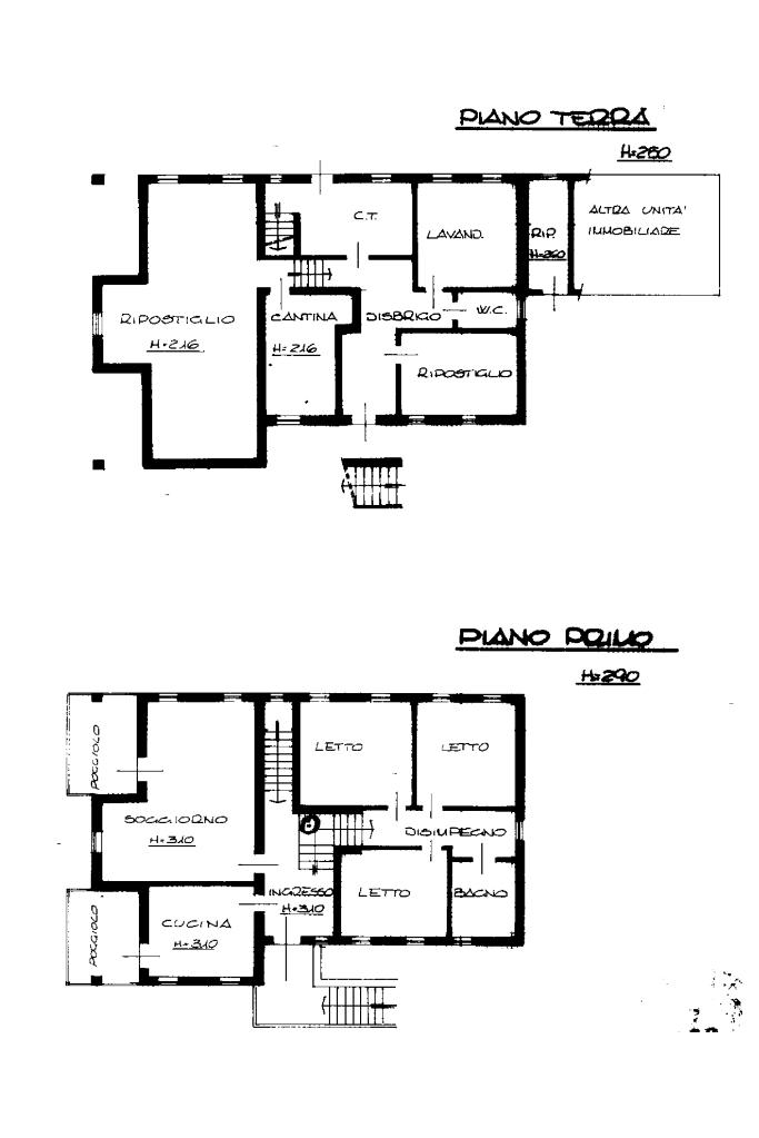
BOVOLENTA - In centro al paese proponiamo in vendita villa singola dalle dimensioni introvabili su un lotto di circa 750 mq di scoperto privato.

L'immobile disposto su piani sfalsati è composto al piano terra da ingresso, soggiorno con angolo cottura, camera matrimoniale, bagno finestrato e lavanderia. Salendo tramite la scala abbiamo acesso al piano superiore composto da un ampia sala da pranzo molto luminosa dalla quale abbiamo accesso al primo poggiolo, un cucinino separato con uscita sul secondo poggiolo, tre camere da letto matrimoniali ed il secondo bagno finestrato. Al piano semi interrato troviamo la taverna provvista di un grazioso caminetto.

A completare l'immobile garage doppio in larghezza.

L'immobile potrebbe essere adatto anche a due nuclei familiari in quanto si può acceddere sia dal piano terra che dal piano primo tramite due ingressi distinti.

Sono state rifatte le grondaie e tutti gli infissi.

Mostra tutto

Nelle vicinanze

Scuole Scuole
Scuole
230 m
Farmacia Farmacia
Farmacia
40 m
Ristoranti Ristoranti
Trattoria Ca' Molin
2,2 Km
Azienda Agrituristica alle Valli
2,5 Km
Mostra tutto

Caratteristiche

Rif.:
61133862
Piano:
1 di 3 (Piano ammezzato)
Box:
2
Terrazzi:
2
Camere da letto:
3
Arredamento:
Parziale
Mostra tutto
Prezzo Prezzo
€ 250.000
Rata mutuo Rata mutuo
€ 1.165 / mese
Spese annue Spese annue
€ 0
Proponi il tuo prezzoProponi il tuo prezzo

Classe Energetica

E
E
E
E
E
E
E
E
E
Anno di costruzione:
1978
Riscaldamento:
Autonomo
Tipo impianto:
A radiatori
Tipo alimentazione:
Metano

Ti interessa visionare l'immobile?

Fissa un appuntamento  Fissa un appuntamento

Richiedi informazioni

Clicca su Leggi per aprire l'informativa
* Questi campi sono obbligatori

Calcola il tuo mutuo

Semplice e senza impegno
Anticipo

( % )
Mutuo

( % )

pochi semplici passi

inserisci i tuoi dati
Questionario completato
Grazie per aver richiesto un appuntamento senza impegno con un nostro Consulente del Credito e Assicurativo.

Hai inserito correttamente tutti i dati necessari e a breve riceverai una e-mail con un link da convalidare per inviare i tuoi dati.
Affiliato
Giove Sas
Via Terradura, 1 35020 Maserà Di Padova (PD)

Il nostro staff


  • Tatiana Rossetto
    Affiliata

  • Maila Carron
    Collaboratrice

  • King Jomarc Laqui Manalo
    Collaboratore

  • Jacopo Salmaso
    Affiliato
Via Terradura, 1 35020 Maserà Di Padova (PD)
Zona: Maserà Di Padova-Casalserugo - Bovolenta
Mostra su mappa
Orari: Dal lunedì al venerdì: 9:00 - 12:30 / 15:00 - 19:30; sabato: 9:00 - 12:30
Affiliato
Giove Sas
Via Terradura, 1 35020 Maserà Di Padova (PD)

2025 Tecnocasa Franchising S.p.A. - P. IVA 08365160152 - Via Monte Bianco 60/A 20089 Rozzano (MI). Ogni agenzia ha un proprio titolare ed è autonoma. Privacy policy | Policy utilizzo | Cookie policy